La Secretaria Comunal de Planificación informa la reciente contratación del proyecto del Fondo Regional de Iniciativa Local:
1.- Proyecto “CONSTRUCCIÓN SEDE SOCIAL POBLACIÓN NUEVO AMANECER”, con fecha 5 de Mayo de 2013 se contrató a la Empresa SOCIEDAD CONSTRUCTORA Y COMERCIALIZADORA RC LIMITADA RUT: 76.507.970-5, para la ejecución de la obra por un monto de $ 48.616.000.- (IVA Incluido) y un plazo de ejecución de 120 días corridos.
Esta obra será financiada con recursos del Fondo Nacional de Desarrollo Regional, ya que la obra corresponde a un proyecto FRIL 2012.
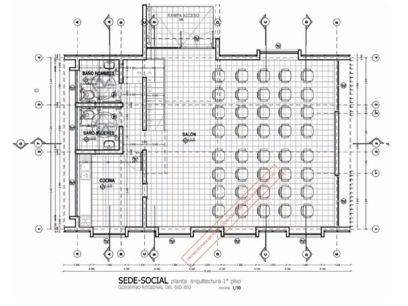
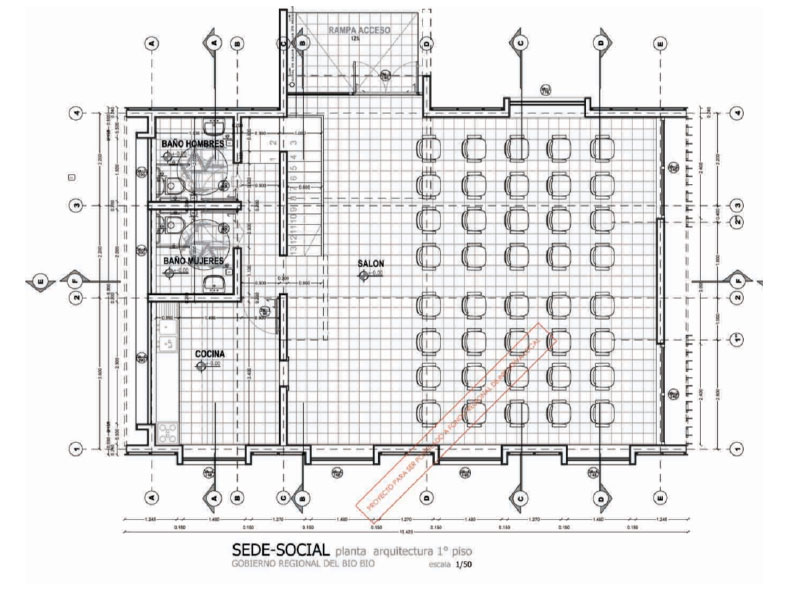
La obra considera la construcción de la sede tipo del Gobierno Regional de superficie 117,27 m2 construidos en dos niveles, el primer nivel considera salón multiuso, baños y cocina y el segundo nivel considera una oficina.
CLICK EN LAS IMÁGENES.




